高柳家


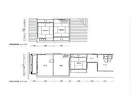
1,2階平面図
立面図
断面図
矩形図(手描きしたものです)
修理前下屋及び本館の軒先が壊され、陸屋根構造に改造されていた。
修理後今回の修理で下屋及び本館の軒先を復元し、正面2階の壁面を漆喰、側面をササラ子下見板で仕上げた。
既設屋根瓦の撤去
登り梁の補強
屋根瓦葺き替え
漆喰壁の乾燥
軒裏の竹小舞下地
左官中塗り
出入り口が2ヶ所ある
雪割瓦
下屋の彫刻石柱(白御影石)
竹小舞下地
鋳物製支柱の柱頭
鋳物製支柱の柱脚
昭和20年頃の写真(当時は時計店)
1,2階平面図
立面図
断面図
この建物は明治35年に建てられた。正面左側に通り土間を持つ平面形式で、奥に中庭を介して蔵が1棟建っている。建物の特徴として、本館の棟には雪割り瓦が使われ、正面2階壁面の漆喰は、蛇腹が白色で他は黒色で仕上げられている。
下屋の左側には彫刻を施した石柱が立っており、敷地が角地になるためか出入り口が2ヶ所設けてある。
竣工年:2006年
施工:ミヤワキ建設株式会社

