若松家


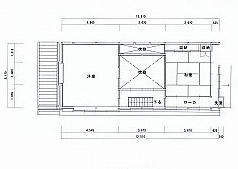
1階平面図
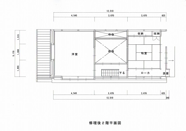
2階平面図
立面図
立面図
断面図
矩形図(手描きしたものです)
修理前正面向って右半分が残った土蔵造りの建物で、下屋部分は陸屋根構造に改造されている。
修理後今回の修理で下屋の復原を行い、外壁の黒漆喰仕上げをし、妻面はササラ子下見板張りにする。
中庭側
下屋の解体
柱の根継ぎ(金輪継ぎ)
建て入り調整
既設瓦の撤去
下屋の化粧タルキ
下見板張り
工事全景写真
葺止めの竹小舞下地
下屋の軒裏中塗り
銅製の受け桝(既設寸法に合せる)
銅製のとい(既設寸法に合せる)
1階平面図
2階平面図
立面図
側面図
断面図
この建物は、間口3間で正面左側に通り土間を持つ形式になっているが、以前は左側に3間広い間口になっていた。構造の痕跡より1,2階の梁が切断されていたり、2階の窓の位置がやや中心よりも左に寄っているのがわかる。
建物の特徴としては、主屋の1階中庭部分に正面と同じ防火壁のレンガ積みや防火戸レールおよび鴨居の痕跡があった。
竣工年:2003年
施工:島崎工務店
2005年平凡社「別冊太陽」に掲載

