若森家
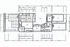
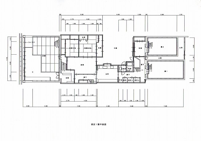
1階平面図
2階平面図
立面図
断面図
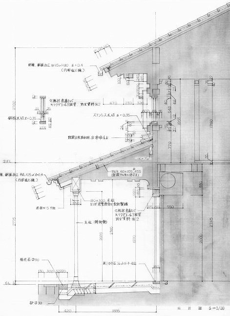
矩形図(手描きしたものです)

全体の印象としては、土蔵造りの町家の形態が残っているものの、経年の老朽化に加え、2階壁面へのペンキの塗布や看板の設置、面格子の撤去等による改造が行われている。

2階部分では看板を撤去し、色漆喰による壁面や面格子の設置等を行った他、1階部分では長戸の位置を元の位置に戻し鋳鉄製の支柱を設置するなど、伝統的な意匠の復原に努めている。














この建物は、明治35年に建てられいるが明治33年(1900)の大火で表のミセが焼失し、裏の土蔵が焼け残ったため、それを表に引き出して店蔵に改造したものである。現在は2階建てになっているが、もともと平屋建てで吹き抜けになっていて四方に回廊がまわっていた。その後、昭和39年に店蔵の後側を増築し、平屋の屋根を立ち上げて増築部分を含む大家根に改造された。建物の特徴としては、正面両脇にレンガの防火壁があり、屋根の棟に雷除けや雪割瓦が使ってある。また、正面2階の壁面は石張りのように見せかけた漆喰仕上げになっている。窓には、鉄格子があったが戦時中供出したため痕跡だけが残っていたが復原した。
竣工年:2003年
施工:株式会社松下工務店